Back to Top - Safi Mediterranee

Carré d’Or – Grand 2 pièces – Résidence de standing

  • 455.000€
8 Avenue Baquis
15 photo(s)

Description

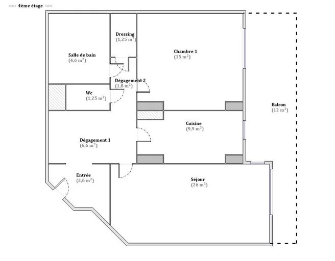
Dans le prestigieux quartier du Carré d’Or, au sein de la résidence de grand standing Le Parnasse, réputée pour son élégance et sa qualité de construction, découvrez ce vaste appartement 2 pièces de 70 m², situé au 4ᵉ étage avec ascenseur. Il se compose d’un grand hall d’entrée avec placard et dégagement, d’une cuisine séparée pouvant être facilement ouverte sur le séjour, offrant ainsi un bel espace de vie. Le séjour donne accès à un balcon-terrasse de 12 m², exposé ouest, idéal pour profiter de la lumière naturelle et des fins de journée ensoleillées.
L’espace nuit comprend une grande chambre, un dressing, une salle de bains avec WC, ainsi que des WC indépendants. Une cave en sous-sol complète ce bien.
Emplacement exceptionnel : à proximité immédiate du parc, de la plage et de tous les commerces, dans l’un des secteurs les plus recherchés de la ville.
Idéal résidence principale, pied-à-terre ou investissement patrimonial. Des travaux de rénovation sont à prévoir et possibilité de transformation en 3 pièces.

Details

  • Prix * : 455.000€
  • * Les Honoraires sont à la charge du vendeur.
  • Taille du bien: 70  m²
  • Chambre: 1
  • Pièces: 2
  • Type de bien: Appartement
  • Ville: Nice
  • Exposition: Ouest
  • Étage: 4ème

 86592563-0--0

Informations légales

Honoraires à la charge du vendeur
Nombre de lot(s) dans la copropriété: 184
Montant moyen de la quote-part des charges courantes: 2000 €.
Pas de procédure.

Classe énergétique

  • Consommation Energie: D
  • Diagnostic de performance énergétique: 192
  • Gaz à effet de serre [A à G]: 6 A / 
  • A
    ≤ 70
  • B
    71 à 110
  • C
    111 à 180
  • 192 | Conso. Energie D
    D
    181 à 250
  • E
    251 à 330
  • F
    331 à 420
  • G
    ≥ 421
  • 6 | Gaz effet serre A
    A
    ≤ 6
  • B
    7 à 11
  • C
    12 à 30
  • D
    31 à 50
  • E
    51 à 70
  • F
    71 à 100
  • G
    ≥ 101

Calculateur d'emprunt

Mensuel
  • Intérêt principal
  • Taxe de propriété
  • Assurance
  • PMI
%
Safi Méditerranée

Soyez alerté pour ce(s) bien(s)

Compare listings

Comparer
Safi Méditerranée
  • Safi Méditerranée

Syndic
Extranet Copropriétaire

Cliquez sur un des deux liens ci-dessous pour accéder à votre extranet copropriétaire.

Gestion/Location
Extranet Propriétaire/Locataire

Cliquez sur le lien ci-dessous pour accéder à votre extranet propriétaire/locataire