Back to Top - Safi Mediterranee

« Déjà Sous Offre d’achat acceptée »2 PIÈCES À FORT POTENTIEL – QUARTIER SAINT JEAN D’ANGÉLY

  • 124.000€
20 Rue Sorgentino
16 photo(s)

Description

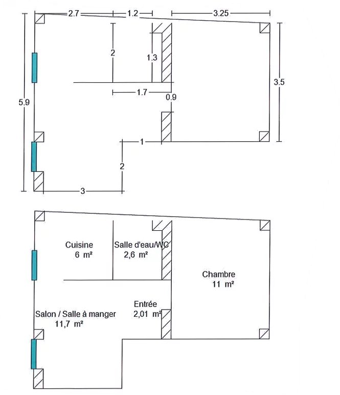
« Déjà Sous Offre d’achat acceptée » Idéalement situé dans le secteur recherché de Saint Jean d’Angély, à proximité immédiate du pôle universitaire, découvrez ce 2 pièces de 33,50 m² situé au 1er étage sur 3 d’une petite copropriété sans ascenseur.
L’appartement se compose d’un hall d’entrée, d’une cuisine ouverte sur le séjour, d’une chambre, ainsi que d’une salle d’eau avec WC. Traversant Est/Ouest, il bénéficie d’une belle luminosité tout au long de la journée.
Ce bien est à finaliser selon vos envies, offrant un excellent potentiel de valorisation ou d’optimisation locative.
Emplacement stratégique : à seulement 20 mètres du tramway, à proximité immédiate d’un parc, cinéma, supermarché et à quelques minutes de la gare ferroviaire Riquier. Un investissement idéal pour location étudiante ou meublée.

Details

  • Prix * : 124.000€
  • * Les Honoraires sont à la charge du vendeur.
  • Taille du bien: 33.31  m²
  • Chambre: 1
  • Pièces: 2
  • Type de bien: Appartement
  • Ville: Nice
  • Exposition: Est
  • Étage: 1er

 86839912-0--

Informations légales

Honoraires à la charge du vendeur
Nombre de lot(s) dans la copropriété: 19
Montant moyen de la quote-part des charges courantes: 1492 €.
Pas de procédure.

Caractéristiques

Chauffage: Individuel
Eau Chaude: Individuelle

Vidéo 360°

Classe énergétique

  • Consommation Energie: E
  • Diagnostic de performance énergétique: 295
  • Gaz à effet de serre [A à G]: 18.5 C / 
  • A
    ≤ 70
  • B
    71 à 110
  • C
    111 à 180
  • D
    181 à 250
  • 295 | Conso. Energie E
    E
    251 à 330
  • F
    331 à 420
  • G
    ≥ 421
  • A
    ≤ 6
  • B
    7 à 11
  • 18.5 | Gaz effet serre C
    C
    12 à 30
  • D
    31 à 50
  • E
    51 à 70
  • F
    71 à 100
  • G
    ≥ 101

Calculateur d'emprunt

Mensuel
  • Intérêt principal
  • Taxe de propriété
  • Assurance
  • PMI
%
Safi Méditerranée

Soyez alerté pour ce(s) bien(s)

Compare listings

Comparer
Safi Méditerranée
  • Safi Méditerranée

Syndic
Extranet Copropriétaire

Cliquez sur un des deux liens ci-dessous pour accéder à votre extranet copropriétaire.

Gestion/Location
Extranet Propriétaire/Locataire

Cliquez sur le lien ci-dessous pour accéder à votre extranet propriétaire/locataire